価格
2,000万円
中古戸建
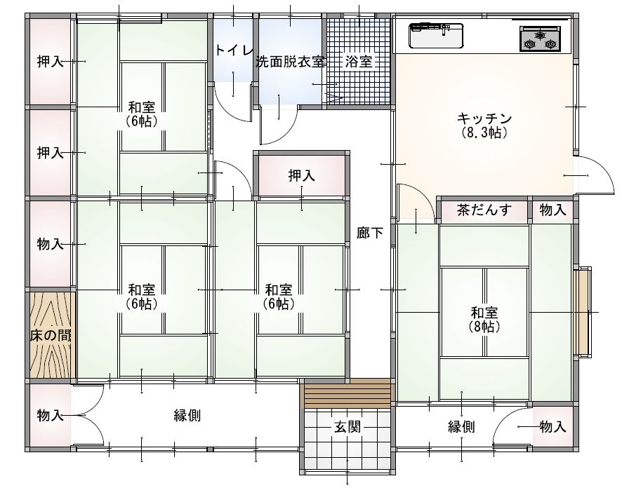
間取
4DK

問い合わせ物件名 農地付平家一戸建て
所在地 福島県南相馬市原町区上渋佐字
交通 JR常磐線原ノ町駅 徒歩2100m
築年月 平成4年 新築/中古 中古
面積 95.86m² 計測方式
バルコニー 向き
建物階数 地上1階  部屋階数 1階
建物構造 木造
敷地全体面積 1766m² 延べ床面積
間取内容
駐車場 取引態様
引渡/入居時期 相談 現況
地目 宅地 用途地域 工業
都市計画 非線引き区域 地勢 平坦
土地面積 747.00m² 土地面積計測方式
周辺環境
設備・条件 バス専用 トイレ専用 バス・トイレ別 温水洗浄便座 エアコン プロパンガス 公営水道 駐車場有
物件番号

いつかはやってみたい農業と平家で日向ぼっこ。どちらも叶えてくれそうな物件ではないでしょうか。敷地は500坪以上。無線塔の支線基礎があり。

〇建物未登記
〇敷地内に無線塔の支線基礎あり。
〇キッチン: ガスプロパン 浴室:灯油
〇トイレ:便器取り替え・内装工事済

 

※物件掲載内容と現況に相違がある場合は現況を優先と致します。

おすすめ(関連した物件8件)

  • サーフボードが飾れる家 (中古一戸建て平屋・南相馬市原町区陣ヶ崎)サーフボードが飾れる家 (中古一戸建て平屋・南相馬市原町区陣ヶ崎)
    3,700万円 4LDK
    南相馬市 原町区陣ヶ崎
  • up
    This is Pink(売買中古戸建・南相馬市原町区大木戸松島)This is Pink(売買中古戸建・南相馬市原町区大木戸松島)
    1,680万円
    南相馬市 原町区大木戸字

●問合せ先

(有)サン・ホーム

代表取締役:小林隆一
資格免許:二級建築士 第12497号/宅地建物取引士(福島)第007203号/(社)全日本不動産協会会員/宅地建物取引業 福島県知事(2)第2868号/建設業 福島県知事許可(般-26)第30854号

事業内容:新築、増改築の設計施工/建築に関する全般/不動産 (賃貸借・土地・建物売買・仲介業務・ご相談も承ります)/太陽光事業・スマートハウス事業

所在地:福島県南相馬市原町区本陣前3丁目142
電話:0244-24-3462/FAX:0244-24-3483

お問い合わせフォーム

エラー: コンタクトフォームが見つかりません。

Top